Plywood Block Building BV

POD 040

De lodge voor gezinnen. Luxe voor ouders, avontuur voor kinderen.

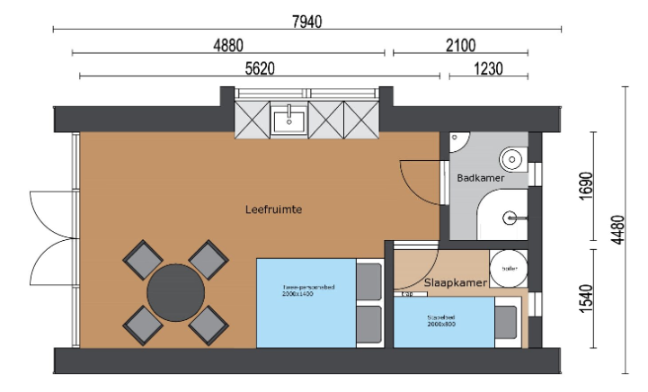
POD 040 | 35-40 m2

De POD 040 heeft de uitstraling van een karakteristiek huisje. De grote glazen pui brengt veel daglicht binnen en zorgt voor direct contact met de omgeving.

Binnen biedt dit model verrassend veel ruimte. Een leefgedeelte, de badkamer en een slaapkamer met stapelbed. In de leefruimte bevindt zich een ruime keuken in het dakkapel en is ruimte voor een tweepersoonsbed en zithoek. Kortom ideaal voor gezinnen of gasten met kinderen.

Deze Pod kan ook worden uitgevoerd als tweepersoonsvariant met het bed in een aparte slaapkamer voor extra comfort en privacy.

 

Extra opties: Luifel 125cm  |  Dakraam

 

Afmetingen

  • Lengte    794 cm
  • Breedte  448 cm
  • Hoogte   357 cm

Vraag hieronder een offerte aan voor de POD 040

Recreatiepods

Is dit iets voor jou neem dan nu contact op!

Shape

Veelgestelde vragen

Vragen die we alvast voor je hebben beantwoord.

Ja, PBB maakt woningen op maat. Wij fabriceren alles in eigen fabriek, waardoor klantspecifike wensen kunnen worden gerealisserd.

Nee, het uitgraven de fundatie, aanbrengen en eventueel omleggen van riolering en nuts is voor de opdrachtgever. Wel nemen wij u mee in het proces na verkoop en in voorbereiding tot het plaatsen met ons fundatieadvies.

Onze woningen worden in de leefruimtes verwarmd door middel van infraroodvloerverwarming. In de badkamer verwarmt een handdoekradiator de ruimte. 

Ja, onze recreatiewoningen zijn het hele jaar inzetbaar! Door de hoogwaardige isolatie en vloerverwarming is het in alle seizoenen goed vertoeven in onze accommodaties. 

Wij geven 10 jaar garantie op de draagconstructie. Daarnaast geven wij 1 jaar garantie op de gehele woningen bij gebreken welke niet aan het gebruik of verhuur toe te rekenen zijn.

Nee, onze woningen worden plug-and-play geleverd. Wat bekend dat na het plaatsen alleen de 

Sinds 1 januari 2024 mogen in de meeste gevallen mantelzorgwoningen zonder vergunning geplaatst worden, mits ze voldoen aan de regels van het Bouwbesluit Bouwwerken Leefomgeving (BBL).

Woont u in een beschermd dorps- of stadsgezicht, of gaat het om een monument? Dan is er meestal wél een omgevingsvergunning nodig.

Ons advies: Raadpleeg uw gemeente voor de regelgeving bij u in de buurt. Zij kunnen direct aangeven wat er op uw locatie mogelijk is.

Wij denken graag met u mee en kijken samen naar een oplossing die past bij uw situatie én de regels.